IMG_0495.JPG

Museum of Opinion

Grainger Street, Newcastle, NE1 5AE

This project was the first brief to consist of multiple floors. This site, unlike the previous, presented new and complicated challenges. Much like 2.1/ 2.2, this building is listed and the exterior shell cannot be modified.

Museum of Opinion, Initial phases.

end store.jpg

Site Research.

During the initial weeks of the project, information is collected to gain knowledge about the site and to inform about the circulation of the existing space and sun patterns around the site. From this, an initial design strategy can be formed.

IMG_0449.jpg

Initial Design.

In the initial design phase, we were tasked with creating a scheme which conveyed opinions of a topic we felt strongly about. The space has to accommodate a design which conveys these opinions. My chosen topic is the expression of thought through music and spoken word.

IMG_0475.jpg

Final Outcome.

After creating a scheme, there was a need to alter the interior spaces to aid in the continuous design of the scheme. Precedents about similar spaces and research into acoustics influenced the design of the space.

MUseum of Opinion, Development.

3.2+Second+Full.jpg

Develop.

After an initial review, changes were made to enhance the flowing nature of the design. Voids in the floor presented structural problems, therefore research into structure was vital. Once the information was collated, additional structural columns were put in place to support the floors and voids.

3.2 Second Axo.JPG

Technical Work.

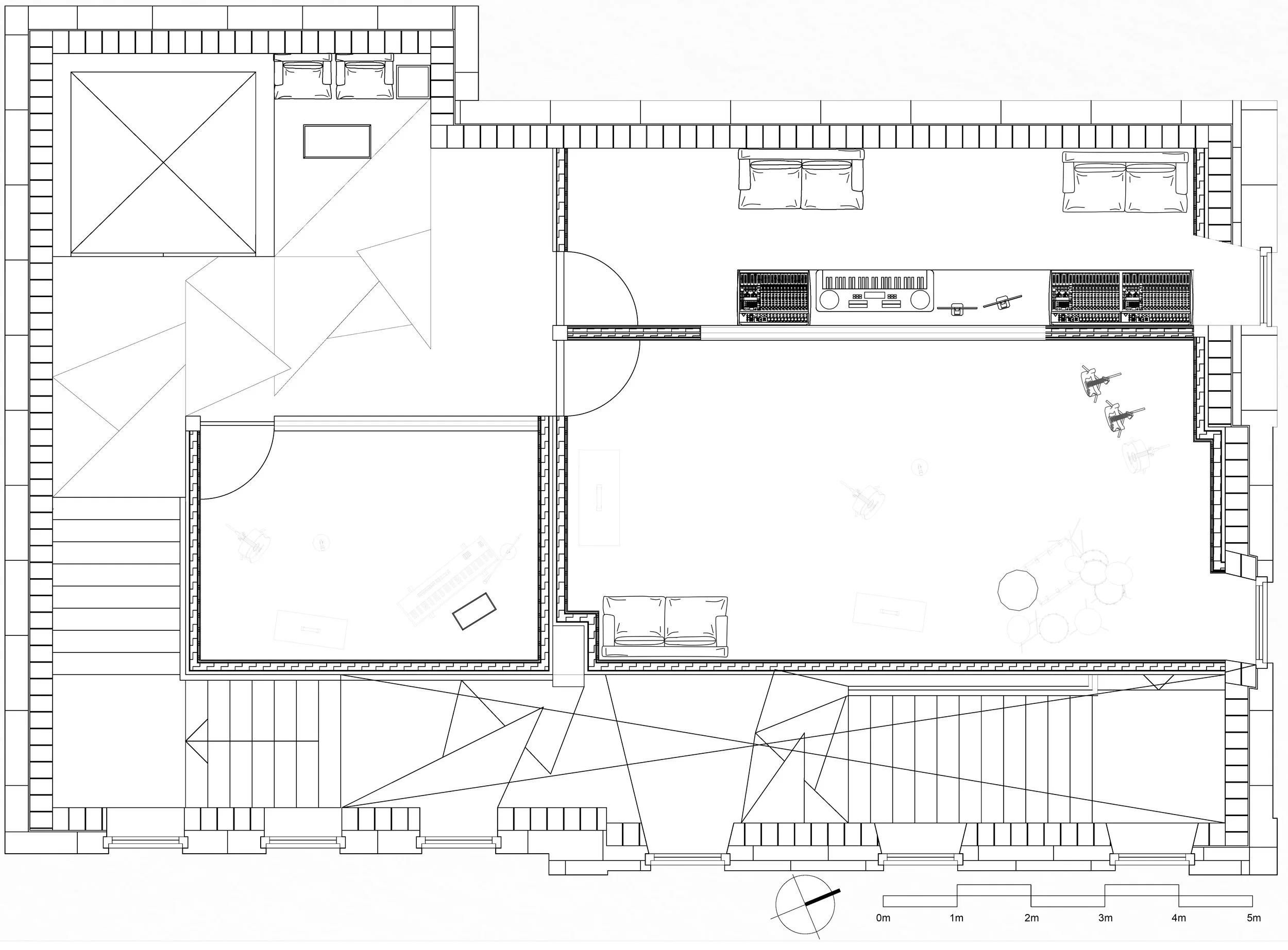
Once the design was solidified, an axonometric was made of each floor to show the 3D nature and atmosphere of the scheme. Furniture is added to occupy the relevant spaces. Zonal plans, an exploded axonometric and 1:20 plans and sections are also created to aid the reader in understanding and visualising the space and its technical features.

Renders.

The renders needed to convey the atmosphere of the individual spaces within the scheme, but also show how they worked cohesively together to show a path up the building. The colours on each floor represent a specific theme. Blue for listening, orange for playing, green for learning and red for reflection. This created different zones within the building that can be changed depending on what the visitors wanted to achieve with their visit. The renders also show how light interacts with the spaces.

Final Renders.

Previous
Previous

Assembly House - Technology and Environment

Next
Next

Maison Latapie - Communicating Interior Architecture